Skip to main content

Planning Application Guide

If an application is submitted without the necessary information to enable officers to assess your proposal: it will be made ‘invalid’.

Our guide will explain what information is needed to validate basic planning applications. It will help to highlight common problems and how to avoid them. You will also find examples of drawings to show the detail you need to include.

You can download this guide too (PDF 663KB).

Planning application minimum checklist

To meet the minimum requirements, you must include:

  • a complete application form that includes the correct ownership certificate: A, B, C or D
  • a site location plan clearly outlined in red - scale 1:250 or 1:2500
  • a site or block plan clearly outlined in red (existing and proposed) - scale 1:200 or 1:500
  • existing floor plans and elevations – scale 1:50 or 1:100
  • proposed and existing roof plans – scale 1:50 or 1:100
  • a section drawing with existing finished floor levels (required where there is a change in levels or the site is sloping) – scale 1:50 or 1:100
  • the correct application fee

Common reasons for invalid applications

Your application will be marked as invalid if the:

  • development site is not clearly outlined in red on the location plan
  • scale bar is inaccurate or not included
  • direction of north is not shown on plans
  • drawings are not labelled clearly or correctly
  • drawings are not drawn to a recognisable scale
  • wrong application form was used or not completed
  • fee was not paid, or you paid the wrong fee
  • information or plans are inaccurate
  • floor plans and elevations do not match
  • wrong ownership certificate is completed
  • scheme proposals are incomplete

It will also be invalid if you are missing:

  • tree surveys
  • arboricultural assessments
  • design and access statements
  • heritage statements
  • flood risk assessments
  • plan numbers

Planning application checklist


You can use the checklist below to make sure your application meets all the validation requirements.

  • Completed application form: including correct ownership certificate: A, B, C or D
  • Correct Application Fee
  • Site Location Plan clearly outlined in red - scale 1:250 or 1:2500
  • Site/Block plan clearly outlined in red (Existing and Proposed) - scale 1:200 or 1:500
  • Existing floor plans & elevations - scale 1:50 or 1:100
  • Proposed floor plans & elevations - scale 1:50 or 1:100
  • Proposed & Existing roof plans - scale 1:50 or 1:100
  • Section drawing with existing finished floor levels (required where a change in levels or site is slopping) - scale 1:50 or 1:100

Submit scaled plans

Accurate scaled plans are required for all applications. We suggest that you hire a planning agent or architect to submit your application on the planning portal.

National and local validation requirements

National validation requirements are set by the government. They are the same for all Planning Authorities in England.

Local validation requirements set out the conditions and documents needed for planning applications in Maidstone and Swale borough councils.

Application form - certificates of ownership

Most planning applications require a completed application form with a certificate of ownership. The correct certificate must be fully signed and dated.

Certificate A: sole owners

Submit this certificate if you are the sole owner of the application site and it is not an agricultural holding.

Certificate B: third party ownership

You should use this certificate if:

  • a third party (for example, Kent County Council (KCC) highways or a neighbour) owns part of the application site or;
  • the land is in an agricultural holding

In this case, you must give notice to the third party. They must be given at least 21 days to respond. The definition of “owner” is explained in the application form.

Certificates C and D: unknown landowners

These certificates are for when not all the landowners are known. You will need to publish a formal notice in a newspaper.

Planning application description

All descriptions should be accurate and clear. It should not be used to justify your proposal.

A poor description will not invalidate your application. However, it may cause a delay in processing until a better description is agreed.

A good description will highlight the part of the proposal that needs planning permission. You do not need to use lots of words. For example, say “single storey rear extension” instead of “we would like to make our kitchen bigger with an extension”.

Correct application fee

As part of the validation process, the planning fee will not be deemed received until it is in the authorities' bank account.

Plans and drawings requirements

Plans and drawings must be drawn to an identified scale. Plans must show the direction of north. You do not have to include a linear scale bar, but it is useful for electronic submissions. The plans and drawings in this guide show the level of detail required.

Site location plan descriptions

This identifies your property within its surrounding area. If you are submitting the application yourself, you can purchase a basic location plan from the planning portal.

You must use a scale of 1:1250 or 1:2500 and base it on an up-to-date map. It should show:

  • a scale bar
  • the direction of North
  • surrounding adjoining buildings
  • ideally at least two named roads

Properties shown should be numbered or named to ensure that the exact location of the application site is clear.  

The application site must be clearly outlined with a red line. Be sure to include:

  • all land necessary to carry out the proposed development
  • any private access to the adopted highway
  • any private access to visibility splays

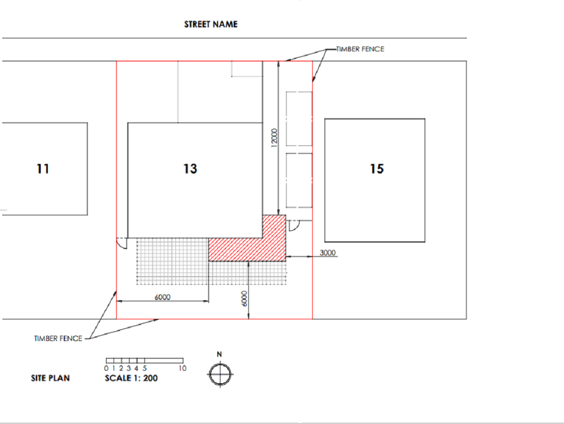
A blue line must be drawn around any other land that you own which is close to or adjoining the application site. An example of an acceptable plan can be seen below:

An example of an acceptable proposed site plan. The plan is focused on a building labelled 13. The timber fence surrounding it is outlined in red. Hard surfaces are identified with a black grid and a red hashed area. The scale bar at the bottom of the image is 1:200 and the north compass is next to it.

Site and block plans

They are two separate plans; existing and proposed.

Existing plans should show what the site looks like at the time of your application. Proposed plans should show your planned extension and any other works you would like to do.

Both plans should show:

  • the whole area of land involved
  • road names, footpaths, and access arrangements
  • existing extensions, outbuildings, and sheds
  • any public rights of way on and around the site
  • parking areas, walls, and fences
  • the position of trees
  • any hard surfacing and type
  • the scale bar
  • the north arrow

Plans must be drawn at a scale of 1:200 or 1:500

You can buy outline plans from the Planning Portal, but you will need to add the features. You will need to include an existing and a proposed site plan. Below is an example of an acceptable proposed site plan:

An example of an acceptable proposed site plan. The plan is focused on a building labelled 13. The timber fence surrounding it is outlined in red. Hard surfaces are identified with a black grid and a red hashed area. The scale bar at the bottom of the image is 1:200 and the north compass is next to it.

Existing plan examples

Existing floor plan scale 1:50 or 1:100

An example of an acceptable existing floor plan at a scale of 1:50 or 1:100. The plan outlines the individual rooms in the house. Doorways, staircases, and windows are identified. The front, rear and side elevations are clearly labelled.

Existing roof plan scale 1:50 or 1:100

An example of an acceptable existing roof plan at a scale of 1:100. The plan outlines the shape of the roof. Arrows identify the direction of the roof slopes. The scale bar is at the bottom of the plan next to the north compass.

Existing elevations scale 1:50 or 1:100

Drawings must clearly show the existing appearance of the building with a scale bar.

An example of an acceptable existing elevation scale at a scale of 1:100. The plan outlines what the building looks like from the outside.   The front, rear and side elevations are labelled underneath. Windows and doors are clearly shown. The floor levels are drawn with dashed horizontal lines. The roof is identified with vertical lines.  The scale bar is at the bottom of the plan. Picture one of two.

An example of an acceptable existing elevation scale at a scale of 1:100. The plan outlines what the building looks like from the outside. The front, rear and side elevations are labelled underneath. Windows and doors are clearly shown. The floor levels are drawn with dashed horizontal lines. The roof is identified with vertical lines. The scale bar is at the bottom of the plan. Picture two of two.

Proposed plan examples

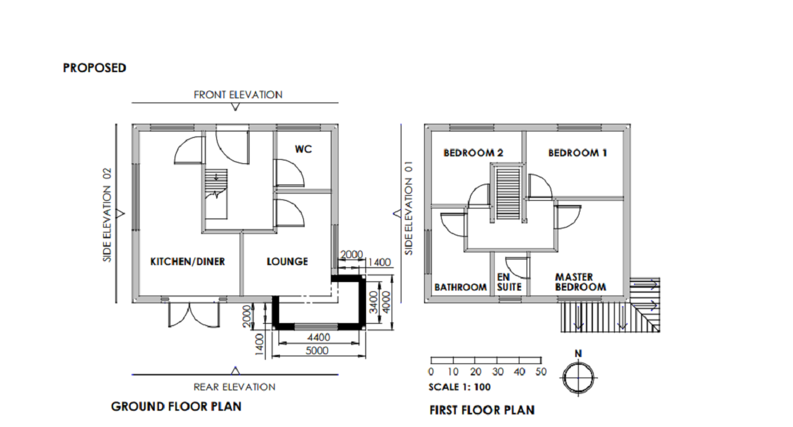
Proposed floor plans scale 1:50 or 1:100

These plans should highlight any walls that will be demolished.

An example of an acceptable proposed floor plan at a scale of 1:50 or 1:100. The plan outlines the individual rooms in the house. Doorways, staircases, and windows are identified. The front, rear and side elevations are clearly labelled. A black square at the bottom of the left drawing outlines the walls of the proposed extension. Measurements are included along with arrows. The drawing on the right outlines the roof of the proposed extension. The lines show the direction of the roof.

Proposed roof plans scale 1:50 or 1:100

Plans should show the general layout of the building. It should be easy to identify.

Include the shape of the roof and any areas that have been cut-away or proposed to be used for balconies.

A north arrow and a scale bar should be included:

An example of an acceptable proposed roof plan at a scale of 1:100. The plan outlines the shape of the roof. Arrows identify the direction of the roof slopes. The roof of the proposed extension is added to the bottom right. The scale bar is at the bottom of the plan next to the north compass.

Proposed elevations scale 1:50 or 1:100

Drawings must clearly show the existing appearance of the building with a scale bar.

An example of an acceptable proposed elevation scale at a scale of 1:100. The plan outlines what the building looks like from the outside. The front, rear and side elevations are labelled underneath. Windows and doors are clearly shown. The floor levels are drawn with dashed horizontal lines. The roof is identified with vertical lines. The proposed extension has been clearly added.  The scale bar is at the bottom of the plan. Picture one of two.

An example of an acceptable proposed elevation scale at a scale of 1:100. The plan outlines what the building looks like from the outside. The front, rear and side elevations are labelled underneath. Windows and doors are clearly shown. The floor levels are drawn with dashed horizontal lines. The roof is identified with vertical lines. The proposed extension has been clearly added. The scale bar is at the bottom of the plan.

Site level and sections

If your proposed works include a land level change you will need to include these plans.

They should show the existing and proposed levels of the site. Highlight how they are different from the land and buildings that adjoin the site. You should use a scale bar of 1:50 or 1:100.

We use cookies

Our website uses cookies to monitor the way you use it, helping to make your experience better. By continuing to use this site or clicking "accept cookies", you agree to our cookies. Cookie policy